Highlights
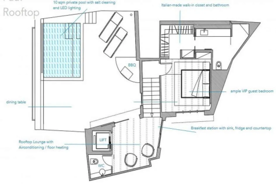
- Swimming pool
VivaMallorca - El mercado inmobiliario de Mallorca, Menorca y Ibiza




















Remember
1 / 3
Remember
2 / 3
Remember
3 / 3