VivaMallorca - El mercado inmobiliario de Mallorca, Menorca y Ibiza

VivaMallorca Inmobiliarias
Sign in My Account

EN DE ES

Back to search results
Print
BuyHouseMallorcaColonia de Sant Jordi
Show on map

GRAN OPORTUNIDAD DE INVERSIÓN EN SON GUAL

Object No.: 038256

Please complete the following information

* marks the required fields

Notes

Enter your personal note for this property:

Notification

The email was sent successfully

Recommend

1.300.000 €

Purchase price

144 m²

Living Area

4

Bedrooms

3

Bathrooms
Remember Inquire Now

Highlights

  • Garden
  • Soleado
  • Swimming pool
  • Laundry service
  • Built-in wardrobes
  • Garage
  • Air condition

Description

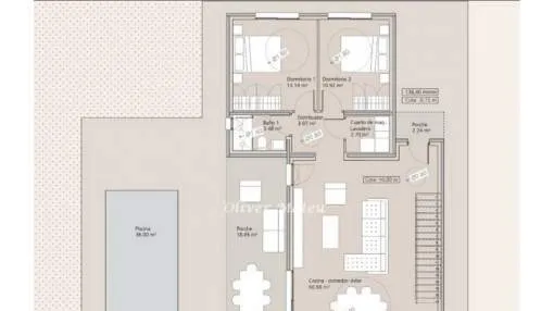
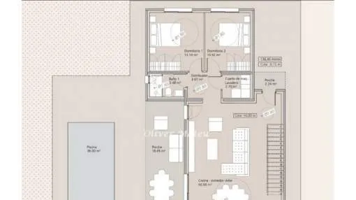
Presentamos una exclusiva oportunidad de inversión en una de las zonas residenciales con mayor proyección de Palma de Mallorca: Son Gual. Este chalet contemporáneo, actualmente con un 80% de su construcción completada, combina arquitectura moderna, entorno natural y un alto potencial de revalorización, posicionándose como una de las mejores opciones del mercado de obra nueva. Ubicación privilegiada: Enclavado en la tranquila y sofisticada zona de Son Gual, a solo unos minutos del prestigioso Golf Son Gual Mallorca, este entorno ofrece privacidad, seguridad y acceso rápido al centro de Palma (18 minutos en coche). Un equilibrio perfecto entre exclusividad residencial y conexión urbana. Diseño y distribución: ·Superficie construida de 170 m² distribuidos en dos niveles. ·4 dormitorios y 3 baños completos, pensados para el máximo confort. ·Espacioso salón-comedor con cocina integrada de 60 m², ideal para la vida moderna y el ocio en familia. ·Exteriores amplios con piscina privada y zona ajardinada para aprovechar el clima mediterráneo todo el año. Ventaja competitiva para inversores: Con el 80% de la construcción completada, adquirir esta propiedad permite personalizar acabados, optimizar costes y maximizar la rentabilidad. La zona de Son Gual ha experimentado un crecimiento sostenido en precios y demanda, destacándose frente a otras áreas residenciales cercanas por su relación calidad-precio y su elevado potencial de valorización. Una inversión inteligente en el mercado premium de Mallorca. Asegura hoy tu posición en una de las ubicaciones más prometedoras de la isla y convierte esta propiedad en un activo de alta rentabilidad futura.

Amenities

  • Air condition
  • Built-in wardrobes
  • Garage
  • Garden
  • Laundry service
  • Soleado
  • Swimming pool
  • Terrace

Location

Colonia de Sant Jordi

SIMILAR OFFERS

To the top

Please complete the following information

* marks the required fields